Строительство собственного дома – это мечта многих людей. Одним из популярных вариантов является дом 9 на 12 одноэтажный. Этот тип дома обладает рядом преимуществ, которые делают его идеальным для комфортного проживания.





















Преимущества дома 9 на 12 одноэтажного
1. Простор и удобство. Дом такого размера предоставляет достаточно пространства для комфортного размещения всех необходимых помещений, включая спальни, гостиные, кухню и ванные комнаты. Вы сможете создать уютную атмосферу для своей семьи и гостей.
2. Экономичность. Одноэтажный дом 9 на 12 имеет более компактные размеры по сравнению с многоэтажными строениями. Это позволяет сэкономить на материалах и строительных работах. Кроме того, такой дом требует меньше энергии для отопления и кондиционирования воздуха.
3. Безбарьерность. Отсутствие лестницы делает дом 9 на 12 одноэтажным идеальным для проживания людей с ограниченными физическими возможностями или пожилых людей. Все помещения находятся на одном уровне, что обеспечивает легкость передвижения.























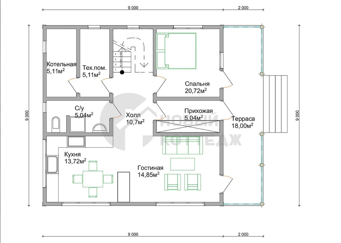
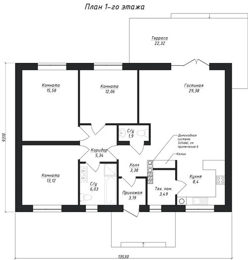
Особенности планировки дома 9 на 12 одноэтажного
Дом 9 на 12 одноэтажный может иметь различные варианты планировки, в зависимости от ваших потребностей и предпочтений. Важно учесть расположение главных комнат, таких как спальни, гостиные и кухня, а также количество и расположение ванных комнат.
Рекомендуется создать функциональную и удобную планировку, чтобы каждое помещение служило своему назначению и соответствовало вашему образу жизни. Вы можете обратиться к специалистам в области дизайна интерьера, чтобы получить профессиональные рекомендации.





















Фотографии дома 9 на 12 одноэтажного
Ниже представлены фотографии дома 9 на 12 одноэтажного, чтобы вы могли представить себе его внешний вид и интерьер. Уникальный дизайн, стильные элементы и функциональность помогут вам создать свою идеальную обитель.























Введение в строительство дома 9 на 12 одноэтажного
Перед тем, как приступить к строительству дома 9 на 12 одноэтажного, необходимо провести подготовительные работы. Это включает выбор участка, разработку проекта, получение разрешений и подготовку строительной площадки.
При выборе участка обратите внимание на его размер, географическое расположение, доступность коммуникаций и окружающую инфраструктуру. Это поможет вам создать оптимальные условия для жизни в доме 9 на 12 одноэтажном.
Для разработки проекта обратитесь к профессиональным архитекторам или дизайнерам. Они помогут вам создать функциональный и эстетически привлекательный дом, учитывая ваши пожелания и требования.





















Заключение
Дом 9 на 12 одноэтажный – это отличное решение для тех, кто ищет комфортное и уютное жилье. Его преимущества включают простор, экономичность и безбарьерность. Важно разработать планировку, которая будет отвечать вашим потребностям, а также обратить внимание на внешний вид и интерьер дома.
Не забывайте о проведении подготовительных работ перед строительством и обращайтесь к профессионалам для получения качественного проекта. Создайте свою идеальную обитель в доме 9 на 12 одноэтажном!