Планировка дома - один из важнейших аспектов при его постройке. Компактные дома, такие как 6 на 6 метров, требуют особого внимания к оптимальному использованию пространства. Если вы мечтаете о доме такого размера с привлекательной террасой, в этой статье мы предоставим вам идеи и рекомендации, а также покажем фото примеров, чтобы помочь вам в создании уютного и функционального жилища.





















1. Планировка первого этажа
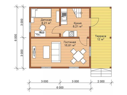
Первый этаж вашего дома 6 на 6 метров можно спланировать с учетом основных потребностей вашей семьи. Важно сделать грамотное распределение пространства, чтобы обеспечить комфорт и удобство в каждой комнате.
Начните с главной зоны - гостиной и кухни. Разместите их в центре дома, чтобы обеспечить легкость доступа и свободное перемещение между помещениями. Используйте функциональную мебель, такую как раскладывающийся диван или стол-трансформер, чтобы оптимизировать использование пространства.
Следующая важная зона - спальня. Выберите подходящее место для создания уютного и спокойного уголка для отдыха. Разместите спальню в углу дома, чтобы обеспечить максимальную приватность.
Также не забудьте о санузле. Поместите его рядом с гостиной и спальней для удобства использования.






















2. Планировка второго этажа
Если ваш дом имеет второй этаж, то его планировка тоже требует внимания. В зависимости от ваших потребностей, вы можете разместить дополнительные спальни, рабочую комнату или игровую зону для детей.
Рекомендуется разместить спальни на втором этаже, чтобы обеспечить максимальную уединенность и отдых. Оптимально разместите их в противоположных углах дома, чтобы каждый член семьи имел свое пространство.
Также не забудьте о ванной комнате на втором этаже, чтобы обеспечить удобство использования и избежать необходимости спускаться на первый этаж для использования санузла.

.jpg)



















3. Просторная терраса
Одной из главных особенностей вашего дома 6 на 6 метров может быть просторная терраса. Терраса - идеальное место для отдыха, проведения времени с семьей и приема гостей. Разместите ее рядом с гостиной, чтобы обеспечить легкий доступ и удобство использования.
Выберите удобную мебель для террасы, такую как уютный садовый диван или стол с креслами, чтобы создать атмосферу комфорта и релаксации. Разместите растения и декоративные элементы, чтобы добавить уют и стиль.





















Введение
Планировка дома 6 на 6 метров с террасой может быть вызовом, но с правильным подходом и идеями вы сможете создать уютное и функциональное жилище. В этой статье мы предоставили вам основные рекомендации и идеи по планировке такого дома, а также показали фото примеров, чтобы вдохновить вас на создание своего уникального проекта.






















Заключение
Надеемся, что данная статья помогла вам получить представление о планировке дома 6 на 6 метров с террасой. Важно помнить, что каждая семья имеет свои потребности и предпочтения, поэтому адаптируйте предложенные идеи под свои нужды. Желаем вам успехов в создании уютного и функционального жилища!