Дровокол – это инструмент, который позволяет разделить дрова на более мелкие части для удобства их использования в качестве топлива. Однако, многие стандартные модели дровоколов не всегда удовлетворяют наши потребности, поэтому создание своего пружинного дровокола может быть отличным решением. В этой статье мы рассмотрим пошаговую инструкцию по созданию пружинного дровокола своими руками.
















Шаг 1: Подготовка материалов
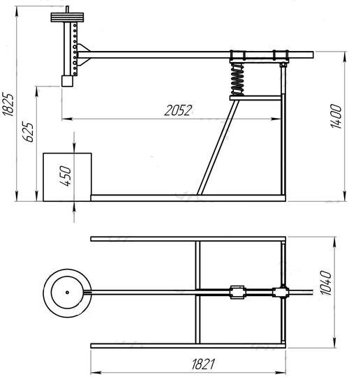
Перед тем, как приступить к созданию пружинного дровокола, необходимо подготовить все необходимые материалы. Вам понадобятся:
- Металлическая труба длиной 1 метр и диаметром 5 сантиметров
- Стальная пружина длиной 50 сантиметров и диаметром 2 сантиметра
- Металлическая пластина размером 20x20 сантиметров
- Деревянная ручка длиной 30 сантиметров
- Крепежные элементы: болты, гайки, шайбы

















Шаг 2: Изготовление основы
Начнем с изготовления основы для пружинного дровокола. Для этого возьмите металлическую трубу и закрепите на ней металлическую пластину. Используйте крепежные элементы для надежного крепления.

















Шаг 3: Установка пружины
После того, как вы закрепили пластину, прикрепите стальную пружину к одному концу трубы. Закрепите пружину с помощью крепежных элементов.















Шаг 4: Установка ручки
Возьмите деревянную ручку и закрепите ее на другом конце трубы. Убедитесь, что ручка надежно закреплена и не будет соскальзывать во время использования.

















Шаг 5: Завершение
Ваш пружинный дровокол готов к использованию! Убедитесь, что все крепежные элементы надежно закреплены, чтобы избежать возможных аварий. Теперь вы можете использовать свой собственный дровокол для быстрого и удобного раскола дров.
Пружинный дровокол - это удобный и эффективный инструмент, который позволяет быстро и легко расколоть дрова на более мелкие части. Создание пружинного дровокола своими руками является интересным проектом для тех, кто увлекается строительством и дизайном. В этой статье мы предоставим вам все необходимые инструкции и фотографии, чтобы вы могли создать свой собственный пружинный дровокол.















Почему создать пружинный дровокол своими руками?
Стандартные модели дровоколов, которые можно найти в магазинах, могут быть дорогими и не всегда удовлетворяют наши потребности. Создание пружинного дровокола своими руками позволяет вам адаптировать его под ваши требования и получить инструмент, который будет идеально подходить для раскола дров. Кроме того, создание собственного дровокола является увлекательным проектом, который поможет вам развить свои навыки и творческий потенциал.
Создание пружинного дровокола своими руками может быть интересным и полезным проектом. Благодаря этому инструменту вы сможете быстро и эффективно расколоть дрова на более мелкие части. Следуя нашей пошаговой инструкции и используя фотографии, вы сможете легко создать свой собственный пружинный дровокол. Приступайте к работе и наслаждайтесь удобством использования вашего нового инструмента!