Одноэтажные дома с односкатной крышей пользуются популярностью благодаря своей функциональности и удобной планировке. В этой статье мы представляем вам план такого дома, а также фотографии различных вариантов, чтобы вдохновить вас на создание своего идеального жилища.



















Введение
Планировка одноэтажного дома с односкатной крышей может быть разнообразной. Она зависит от ваших потребностей, предпочтений и размеров участка. Важно определиться с жилой площадью, количество комнат, а также расположение главных зон, таких как гостиная, спальни, кухня и ванная комната. Ниже мы рассмотрим основные варианты планов и их особенности.






















План 1
Первый вариант плана одноэтажного дома с односкатной крышей представляет собой простую и компактную конструкцию. Вход в дом осуществляется через просторный холл, который ведет в гостиную. Рядом с гостиной располагается кухня с обеденной зоной. Спальные комнаты и ванная комната находятся по соседству, обеспечивая удобство и комфорт для всей семьи.
Фото 1:






















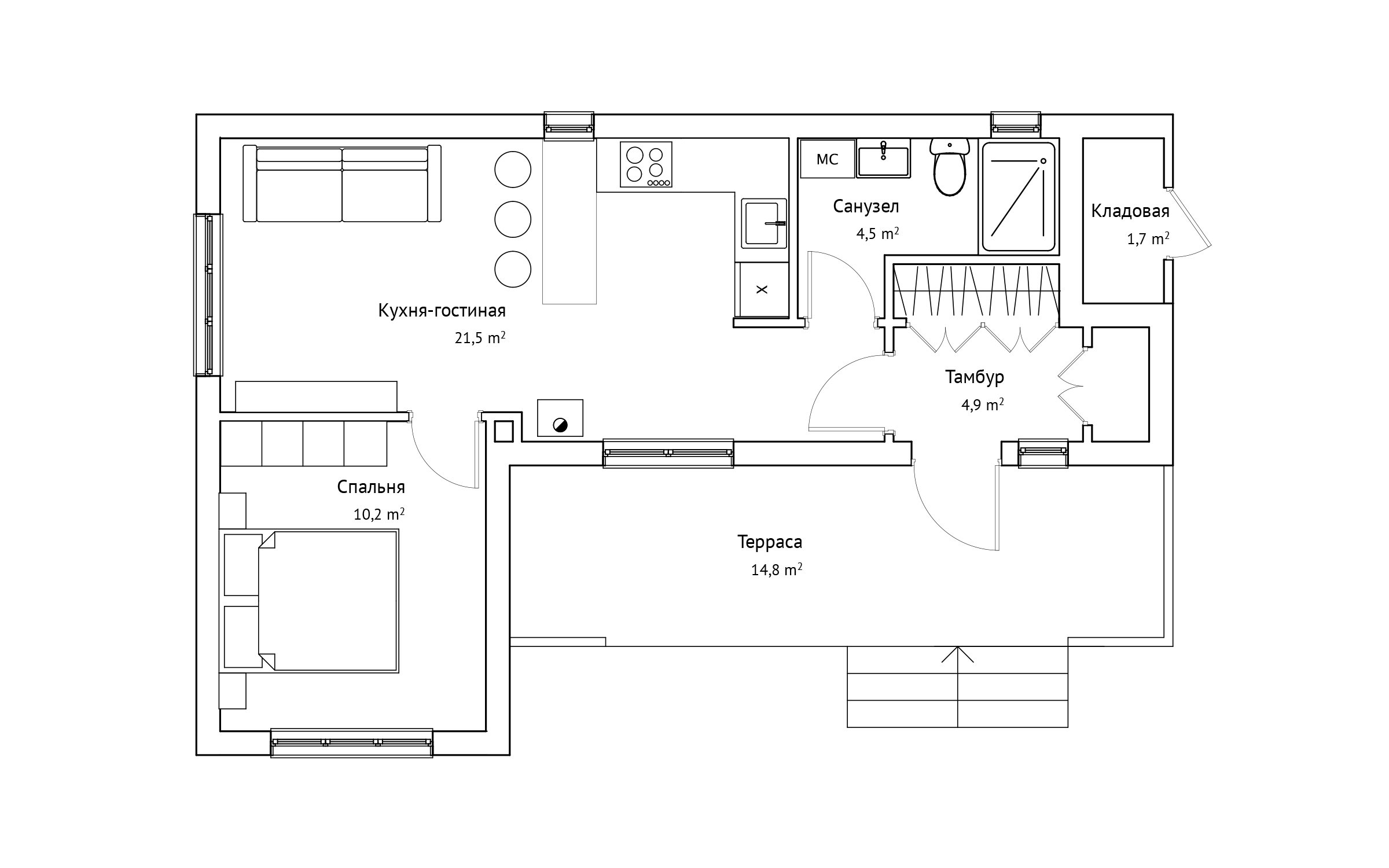
План 2
Второй вариант плана одноэтажного дома с односкатной крышей предусматривает более просторную планировку. В этом варианте гостиная соединена с кухней в единую зону, создавая открытое пространство для семейного общения. Кроме того, в доме есть отдельная спальня для родителей с собственной ванной комнатой. Дополнительные спальные комнаты и вторая ванная комната находятся в другой части дома, обеспечивая максимальную приватность для всей семьи.
Фото 2:





















План 3
Третий вариант плана одноэтажного дома с односкатной крышей представляет собой современную и просторную конструкцию. Гостиная, кухня и столовая зона занимают центральное место в доме, создавая открытое пространство для семейных вечеров и приема гостей. Спальные комнаты расположены по бокам от гостино-кухонной зоны, обеспечивая уединение и комфорт для каждого члена семьи.
Фото 3:






















Заключение
Планировка одноэтажного дома с односкатной крышей может быть разнообразной и зависит от ваших предпочтений и потребностей. В этой статье мы представили несколько вариантов планов и фотографии, чтобы помочь вам найти вдохновение для создания своего идеального жилища. Помните, что планировка должна соответствовать вашим потребностям и обеспечивать комфорт и удобство для всей семьи.