Мини баня с бассейном - это отличное решение для тех, кто хочет насладиться атмосферой сауны и расслабиться в бассейне, не покидая своего дома. В этой статье мы представляем вам различные проекты мини бань с бассейном, которые помогут вам создать уютное и функциональное пространство для отдыха и релаксации.





















Проект 1: Мини баня с небольшим бассейном на заднем дворе
Этот проект предлагает идеальное решение для тех, у кого есть небольшой задний двор. Мини баня с небольшим бассейном может быть легко размещена на ограниченной площади, и при этом предоставить все необходимые удобства. Фотографии этого проекта вдохновят вас на создание своего собственного уголка релаксации и отдыха.






















Проект 2: Мини баня с бассейном в стиле скандинавской сауны
Если вы предпочитаете скандинавский стиль, то этот проект будет для вас идеальным выбором. Мини баня с бассейном в стиле скандинавской сауны создаст атмосферу уюта и спокойствия. Фотографии этого проекта помогут вам воплотить в жизнь свои дизайнерские идеи и создать уникальное пространство для отдыха и расслабления.






















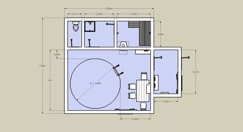
Проект 3: Мини баня с бассейном и панорамными окнами
Хотите наслаждаться прекрасным видом за окном во время посещения бани? Тогда этот проект идеально подойдет для вас. Мини баня с бассейном и панорамными окнами позволит вам насладиться видом на природу, не выходя из комфортного пространства вашей бани. Фотографии этого проекта помогут вам вдохновиться и создать уютное место, где можно расслабиться и насладиться природой.






.jpg)














Проект 4: Мини баня с бассейном и террасой
Если вы хотите иметь возможность наслаждаться свежим воздухом и природой после посещения бани, то этот проект идеально подойдет для вас. Мини баня с бассейном и террасой предлагает уникальное решение для создания комфортного пространства, где можно отдохнуть и насладиться природой. Фотографии этого проекта помогут вам воплотить в жизнь свою идею и создать место, где можно насладиться баней и прекрасным видом с террасы.






.jpg)














Проект 5: Мини баня с бассейном и зоной отдыха
Этот проект предлагает создание мини бани с бассейном и зоной отдыха, где можно расслабиться после посещения сауны. Удобные кресла или шезлонги, фонтанчики и растения помогут создать уютную атмосферу и обеспечить комфортный отдых. Фотографии этого проекта помогут вам вдохновиться и создать уникальное пространство для отдыха и расслабления.
Введение
Мини баня с бассейном - это превосходное сочетание релаксации и удовольствия, которое можно создать даже на небольшой площади. В этой статье мы представили вам несколько проектов мини бань с бассейном, сопровождаемых фотографиями, чтобы помочь вам найти вдохновение и выбрать лучший проект для вашего дома.
Заключение
Мини баня с бассейном - это отличное решение для создания уютного и функционального пространства для отдыха и релаксации. В этой статье мы представили вам различные проекты мини бань с бассейном, сопровождаемые фотографиями, чтобы помочь вам выбрать лучший вариант для вашего дома. Воплотите свои идеи в реальность и создайте уникальное место, где вы сможете наслаждаться атмосферой сауны и расслабиться в бассейне, не покидая своего дома.