Планировка дома является одним из самых важных аспектов при его строительстве. Двухэтажный дом размером 10 на 8 метров предоставляет множество возможностей для создания комфортного и функционального пространства.





























.jpg)





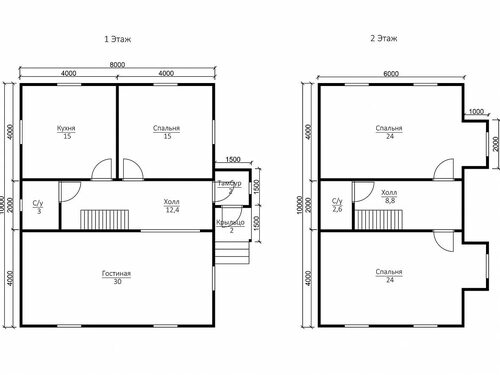
Первый этаж
Первый этаж дома 10 на 8 метров предлагает разнообразные помещения для различных потребностей семьи. Главной частью этажа является просторная гостиная, которая может быть разделена на зоны отдыха и столовую. Кухня, оснащенная современными приборами, располагается рядом с гостиной, что обеспечивает удобство приготовления пищи и общение с гостями.
Также на первом этаже располагается гостевая спальня с собственной ванной комнатой, что позволяет принимать гостей без необходимости использования главной спальни. Дополнительные помещения, такие как офис или детская игровая комната, могут быть размещены рядом с гостиной для удобства.


























/7.jpg)









Второй этаж
Второй этаж дома 10 на 8 метров является приватной зоной для семьи. Главная спальня с собственной ванной комнатой и гардеробной комнатой обеспечивает уют и комфорт. Дополнительные спальни и ванные комнаты предлагают достаточно места для всех членов семьи.
Также на втором этаже можно разместить детскую комнату или игровую зону, чтобы дети имели свое собственное пространство для игр и обучения. Балкон или терраса на этаже добавляют дополнительное пространство для отдыха и наслаждения свежим воздухом.




_8x8_plan.jpg)







.jpg)























Выводы
Дом 10 на 8 метров с двумя этажами предоставляет множество возможностей для создания уютного и функционального пространства для семьи. Планировка помещений должна быть тщательно продумана, чтобы максимально использовать площадь и удовлетворить потребности всех членов семьи.
Фотографии домов такого размера и планировки помогут вам получить вдохновение и идеи для создания своего идеального дома. Не забывайте учитывать ваши собственные потребности и предпочтения при выборе планировки дома.