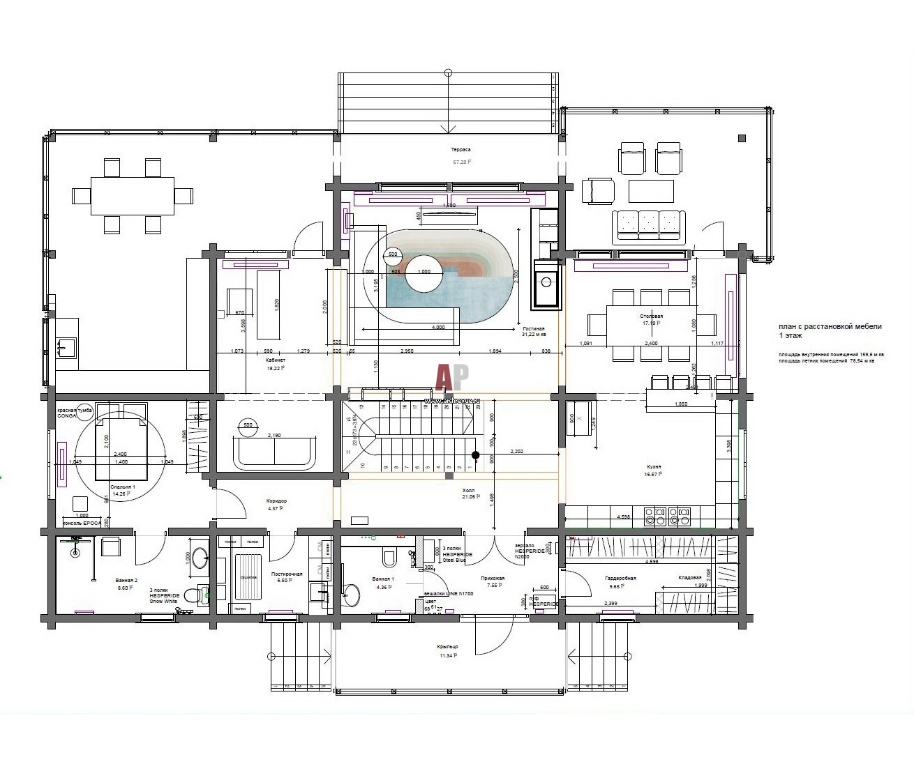
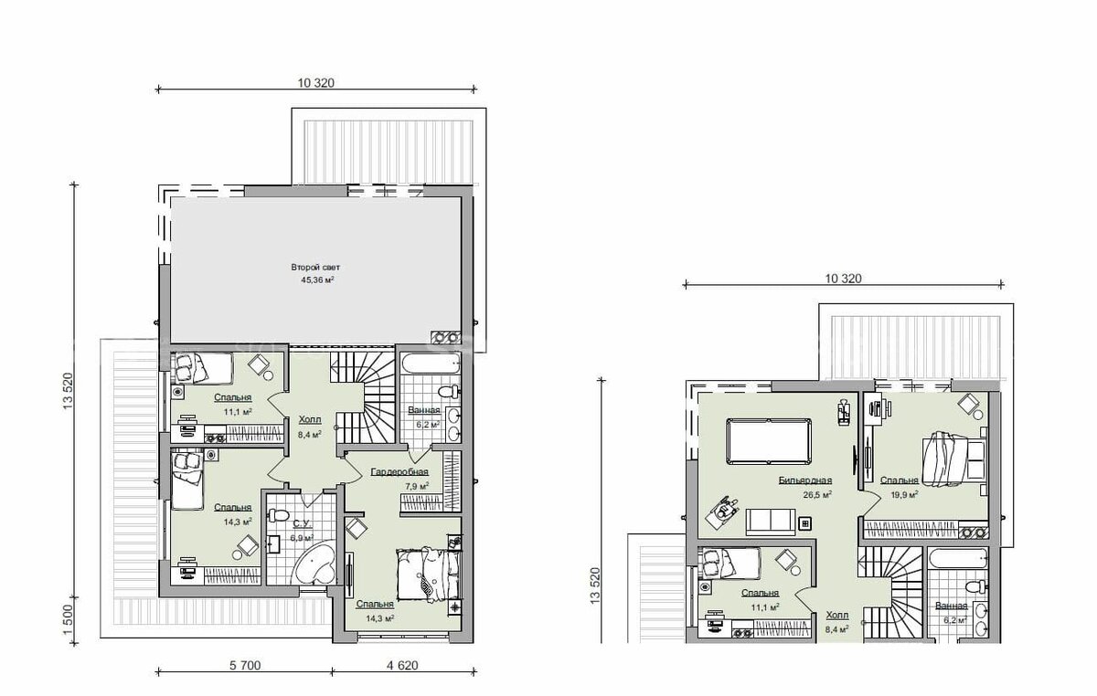
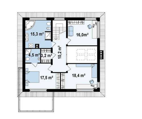
Планировка дома играет важную роль в создании комфортной и функциональной обстановки. Одним из интересных вариантов является планировка со вторым светом, которая позволяет максимально осветить пространство и добавить в него уникальность. В этой статье мы рассмотрим преимущества и особенности планировки домов со вторым светом и предоставим фотографии, чтобы вдохновить вас на создание собственного проекта.

























Что такое второй свет?
Второй свет - это дополнительный источник естественного освещения, который создается с помощью окон или форточек, размещенных на верхнем уровне стены или потолка. Он позволяет проникать свету внутрь помещения даже в тех его уголках, которые обычно остаются темными и малоосвещенными.
























Преимущества планировки домов со вторым светом
Планировка домов со вторым светом имеет множество преимуществ, которые делают ее популярным выбором среди дизайнеров и домовладельцев. Некоторые из них включают:
1. Естественное освещение
Второй свет позволяет максимально использовать естественное освещение в помещении, что делает его более комфортным и приятным для проживания. Хорошо освещенные комнаты выглядят более просторными и светлыми.
2. Создание уникального дизайна
Планировка дома со вторым светом дает возможность создать уникальный и оригинальный дизайн. Световые линии, проникающие внутрь помещения, могут быть использованы для создания интересных эффектов и акцентов в интерьере.
3. Визуальное соединение с природой
Благодаря второму свету можно создать визуальное соединение с природой, даже если ваш дом находится в городской среде. Он позволяет вам наслаждаться видом неба, деревьев и других элементов природы прямо изнутри вашего жилища.


























Примеры планировки домов со вторым светом
Давайте рассмотрим несколько примеров планировки домов со вторым светом, чтобы вдохновить вас на создание своего проекта:
1. Открытая галерея
Одним из вариантов планировки дома со вторым светом является открытая галерея. Это пространство, расположенное на втором этаже и имеющее большие окна или форточки. Открытая галерея создает ощущение простора и света, а также может служить зоной отдыха или рабочего места.
2. Вертикальные окна
Другой вариант планировки со вторым светом - вертикальные окна, которые размещаются вдоль стены или потолка. Они создают своеобразный световой шах и позволяют свету проникать во все уровни помещения, делая его более ярким и привлекательным.
3. Световые трубы
Световые трубы - это еще один способ создания второго света в помещении. Они представляют собой трубы или трубки, устанавливаемые в крышу или стену, и позволяют проникать свету внутрь дома даже в условиях недостатка естественного освещения.






















Заключение
Планировка домов со вторым светом предоставляет уникальные возможности для создания комфортного и функционального пространства. Она позволяет максимально использовать естественное освещение и создать уникальный дизайн. Рассмотрите различные варианты планировки и дайте волю своей фантазии!