Одноэтажные дома пользуются большой популярностью среди тех, кто предпочитает комфорт и удобство. В таких домах можно реализовать различные планировочные решения, чтобы обеспечить оптимальное использование пространства и создать комфортные условия для жизни. В данной статье мы рассмотрим несколько интересных и функциональных планировок одноэтажных домов, сопровождая их фотографиями.
















1. Классическая планировка
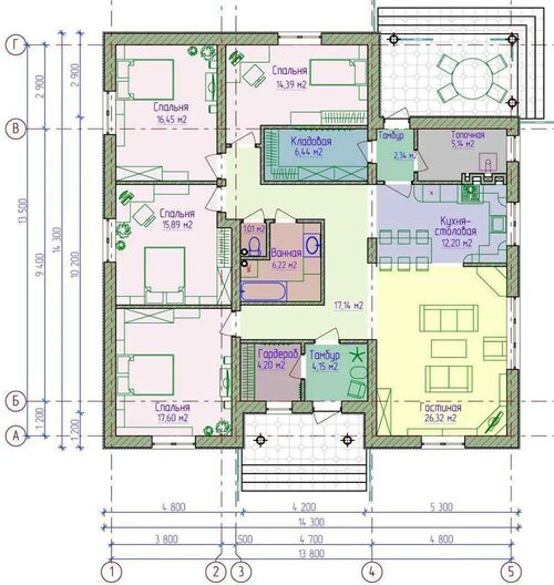
Классическая планировка одноэтажного дома предполагает размещение гостиной, кухни, спальных комнат и санузлов на одном уровне. Это удобно для семей с детьми или пожилыми людьми, которым необходимо избегать лестниц и перепадов уровней. Фотография ниже демонстрирует пример классической планировки.

















2. Открытая планировка
Открытая планировка стала популярной в последние годы. Она предполагает объединение гостиной, кухни и столовой в одно пространство без стен и перегородок. Такая планировка создает ощущение простора и удобства, позволяет легко общаться и взаимодействовать с членами семьи и гостями. На фотографии ниже вы можете увидеть пример открытой планировки.

















3. Разделение зон
Некоторые люди предпочитают разделять зоны в одноэтажном доме, чтобы создать более интимные и уютные пространства. Например, спальня может быть отделена от гостиной и кухни перегородкой или шкафом-купе. Это позволяет каждому члену семьи иметь свое пространство и чувствовать себя комфортно. Фотография ниже иллюстрирует пример разделения зон.















4. Планировки с выходом на террасу
Если у вас есть просторный участок и вы любите проводить время на свежем воздухе, то планировка с выходом на террасу может быть отличным решением. Такие планировки предполагают наличие больших окон или патио, которые позволяют легко выйти на открытое пространство. Фотография ниже демонстрирует пример планировки с выходом на террасу.
















5. Планировки для больших семей
Если ваша семья большая или вы часто принимаете гостей, то стоит обратить внимание на планировки, которые предоставляют достаточное количество спален и ванных комнат. Это позволит каждому члену семьи или гостю иметь свое пространство и чувствовать себя комфортно. Фотография ниже иллюстрирует пример планировки для больших семей.

















Заключение
В данной статье мы рассмотрели несколько интересных планировок одноэтажных домов. Каждая из них имеет свои преимущества и может быть адаптирована под ваши потребности. Выбирайте планировку, которая наиболее соответствует вашим желаниям и создайте комфортное пространство для своей семьи.